The Grove – Living the Dream

A contemporary design ideal for large block, with everything you need to live effortlessly.

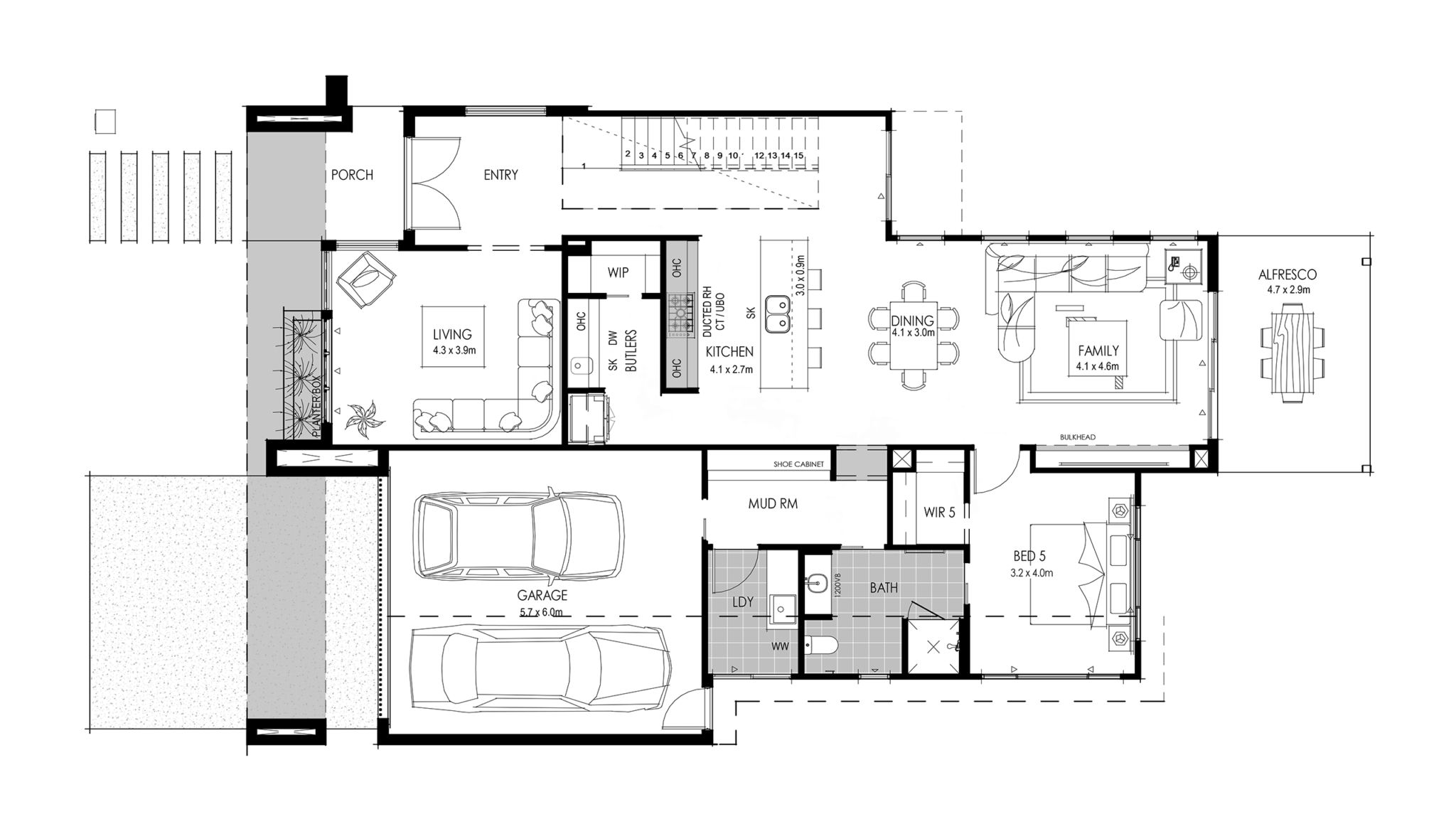
House Size 338sqm
Frontage 17m+ frontage
Bedrooms 5
Bathrooms 3.5
Living Spaces 4
Study 1
Mud room 1

Enjoy life above it all with this stylish new custom home from Besa. Featuring 5 bedrooms, 3.5 bathrooms, and expansive open plan living areas, this home is part of The Quarry master development, a collaboration with Fraser.

For mor information: https://www.realestate.com.au/project/the-quarry-keperra-600039048

On the ground floor of the residence you have everything you need with a grand entrance to the home leading to the entertainers kitchen featuring large butlers pantry, open plan dining and living area, all flowing out to the under cover alfresco and large backyard. Additional features include a large guest bedroom, functional mudroom, and third bathroom. Upstairs the family will all enjoy the spacious bedrooms, expansive master suite, and privately located rumpus.